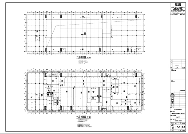
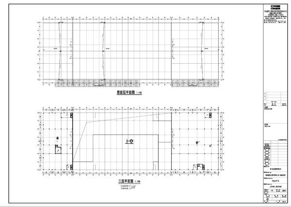
由浙江蓋亞新能源有限公司建設的新建儲能型大圓柱3GWh鋰(鈉)電池制造項目位于遂昌縣經濟開發區龍板山區塊,項目總用地面積64,831㎡。

坐標浙江遂昌!儲能型大圓柱3GWh鋰(鈉)電池制造項目公示

電池網從浙江麗水遂昌縣人民政府獲悉,8月5日,“新建儲能型大圓柱3GWh鋰(鈉)電池制造項目”設計方案公示。

據了解,由浙江蓋亞新能源有限公司建設的新建儲能型大圓柱3GWh鋰(鈉)電池制造項目位于遂昌縣經濟開發區龍板山區塊,用地性質為工業用地。項目總用地面積64,831㎡,總建筑面積75,310.29㎡,總計容建筑面積135,713.63㎡,建構筑占地面積35,972.59㎡,建筑系數55.49%,容積率2.09,綠地率10.03%,主要建設廠房、綜合樓等。

現設計方案已通過相關部門聯合審查,依法予以公示。公示期自2024年8月5日至2024年8月15日。各位市民如有異議,請在公示期限內以書面形式提出反饋意見。公示期滿無異議,遂昌縣自然資源和規劃局將按規定辦理相關手續。

地址:妙高街道南街101號(郵編323300)

電話:0578-8510695    0578-8510685

坐標浙江遂昌!儲能型大圓柱3GWh鋰(鈉)電池制造項目公示

坐標浙江遂昌!儲能型大圓柱3GWh鋰(鈉)電池制造項目公示

坐標浙江遂昌!儲能型大圓柱3GWh鋰(鈉)電池制造項目公示

坐標浙江遂昌!儲能型大圓柱3GWh鋰(鈉)電池制造項目公示

坐標浙江遂昌!儲能型大圓柱3GWh鋰(鈉)電池制造項目公示

[責任編輯:陳長清]

免責聲明:本文僅代表作者個人觀點,與電池網無關。其原創性以及文中陳述文字和內容未經本網證實,對本文以及其中全部或者部分內容、文字的真實性、完整性、及時性,本站不作任何保證或承諾,請讀者僅作參考,并請自行核實相關內容。涉及資本市場或上市公司內容也不構成任何投資建議,投資者據此操作,風險自擔!

凡本網注明?“來源:XXX(非電池網)”的作品,凡屬媒體采訪本網或本網協調的專家、企業家等資源的稿件,轉載目的在于傳遞行業更多的信息或觀點,并不代表本網贊同其觀點和對其真實性負責。

如因作品內容、版權和其它問題需要同本網聯系的,請在一周內進行,以便我們及時處理、刪除。新聞熱線:400-6197-660-1

電池網微信
鋰電池
鈉電池
儲能